In today's rapidly evolving construction landscape, the demand for efficiency, accuracy, and seamless integration in MEP installations has never been higher. In meeting these demands, Revit BIM emerges as a pivotal tool, offering a comprehensive solution for optimizing plumbing system designs within the broader MEP framework. Through its robust capabilities, Revit BIM enables engineers, architects, and contractors to collaborate seamlessly, visualize intricate plumbing layouts, and address potential clashes before they arise. In this blog post, we delve into the transformative potential of Revit BIM for plumbing system designs, and enhance overall MEP performance.
One of the first things to consider is the layout of the plumbing system. It's essential to plan the placement of pipes, fixtures, and valves thoughtfully. Imagine a home where the bathroom is located far from the main plumbing lines – the result could be poor water pressure and delayed hot water delivery. By strategically placing components and ensuring accessibility for maintenance, you can optimize the system's performance.
The choice of materials for plumbing components is a crucial factor in designing a reliable system. Different materials offer varying levels of durability, corrosion resistance, and cost-effectiveness. Copper, PVC, and PEX are common choices for pipes, each with its own set of advantages. Understanding the characteristics of these materials helps in selecting the most suitable ones for the specific needs of the plumbing system.
In today's environmentally conscious world, designing a plumbing system that promotes water efficiency is essential. Consider incorporating low-flow fixtures, dual-flush toilets, and other water-saving technologies. Not only does this contribute to sustainability efforts, but it can also result in cost savings for the building owner over time.
Utilizing Building Information Modeling (BIM) for plumbing system design adds a layer of efficiency and precision. BIM allows for a digital representation of the plumbing system, enabling better collaboration among architects, engineers, and contractors. It helps in identifying and addressing potential issues before construction, reducing errors, and streamlining the entire process.

Envision a construction site as a bustling city where diverse systems must seamlessly coexist. A significant challenge in MEP installation arises from the coordination between various building systems. Picture it as a dance, with plumbing, electrical, and mechanical components requiring synchronized movements.
The problem emerges when there is a lack of communication or understanding between these systems. For instance, a plumbing layout might clash with an electrical conduit, causing delays and necessitating rework.
In the intricate network of MEP installation, conflicts and clashes among components act as obstacles on the construction path. These conflicts can range from pipes intersecting with electrical conduits to ventilation ducts obstructing plumbing pathways. Identifying and resolving these clashes early in the project can save both time and resources.
Think of making something like putting together a puzzle. But what if you're missing some pieces? That's what it's like when design plans for plumbing are unclear or incomplete. Not having enough info about where pipes go or how big they should be can lead to confusion and mistakes during installation.

BIM enables detailed 3D modeling of plumbing systems before they are installed. Designers and engineers can create accurate plans, mapping out the entire plumbing network virtually. This precision helps in identifying potential issues before the actual installation, reducing the chances of errors.
Impact: By eliminating design flaws early on, BIM ensures that the plumbing system is installed correctly the first time, saving time and resources.
One of the significant challenges in plumbing installations is clashes with other building components like electrical wiring or HVAC systems. BIM software allows for clash detection by overlaying different building systems in the virtual model, preventing conflicts before construction begins.
Impact: Avoiding clashes reduces the need for rework, minimizing disruptions and saving both time and money.
BIM facilitates the analysis of plumbing systems for energy efficiency. Designers can simulate and optimize the performance of the plumbing network, ensuring that it operates at peak efficiency. This can include features like low-flow fixtures and water recycling systems.
Impact: Energy-efficient plumbing not only reduces utility costs but also contributes to environmental sustainability.
As the plumbing system operates, data can be collected and analyzed through BIM. This information can be invaluable for future renovations or upgrades, providing insights into areas that may need improvement.
Impact: Continuous improvement is facilitated by data-driven decision-making, leading to long-term cost savings and enhanced performance.
Revit boasts a user-friendly interface that makes it accessible to both seasoned professionals and newcomers to the world of design. The simplicity of its design tools allows architects and engineers to create detailed plumbing plans without being overwhelmed by complicated features.
Revit's parametric design capabilities are a major asset for planning plumbing systems. Simply put, it means that when you make a change in one part of the design, Revit automatically updates all related elements. This dynamic feature helps prevent errors and ensures that the entire plumbing system stays coordinated.
For example, if you decide to move a sink to a different location, Revit will automatically update the piping layout, ensuring that the entire system remains accurate and connected.
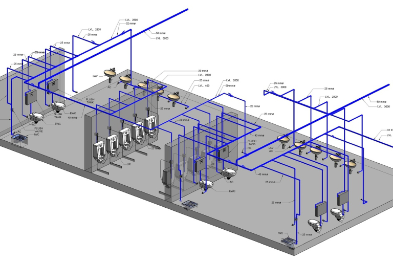
Revit goes beyond traditional 2D drafting and offers powerful 3D visualization capabilities. This feature is a game-changer for plumbing planning, allowing designers to see the entire plumbing system in a realistic, three-dimensional view. This not only aids in better understanding the spatial relationships between different components but also helps identify potential clashes or design issues early in the planning stage.
Revit operates on the principles of Building Information Modeling (BIM), which means that it creates a digital representation of the building and its systems. This approach provides a comprehensive and holistic view of the project, allowing designers to consider various aspects simultaneously. When it comes to plumbing planning, BIM ensures that the plumbing system is integrated seamlessly into the overall building design.

Think of a template as your pre-built house. Revit offers various MEP (mechanical, electrical, and plumbing) templates to kickstart your project. Choose one that matches your building type, like "residential" or "commercial." This gives you walls, floors, and basic elements already in place, saving you precious time.
Imagine a toolbox filled with all the plumbing parts you need: pipes, fixtures, valves, the whole crew. Revit calls these "families." They're like Lego blocks that snap together to form your system. The good news is, Revit comes loaded with tons of pre-made families. You can also find more online or even create your own!
Think of views like different perspectives on your building. Revit lets you create plans, sections, and 3D views to visualize your plumbing system from any angle. Need to see how the pipes run through a specific floor? Create a plan view! Want to check how that drain connects to the main stack? Slice through the building with a section view!
Now comes the fun part: routing the pipes! Revit has smart tools that let you connect families seamlessly. Think of them like magic tunnels that follow your clicks and magically turn into pipes. You can adjust their size, slope, and even add insulation – all with a few clicks.
Remember, plumbing is all about water moving. Revit lets you analyze your system's flow, ensuring everything runs smoothly. Imagine tiny water droplets zipping through your virtual pipes, highlighting any pressure drops or bottlenecks. This way, you can optimize your design before a single wrench is turned in real life.
The blog above is all about installation of plumbing BIM modeling. And last but not least, warm hello from Harmony AT - a place where you easily find all systems you need for construction projects - especially MEP modeling services. If you have any wonders, click here to call us.
Categories