BeunestraBe 18

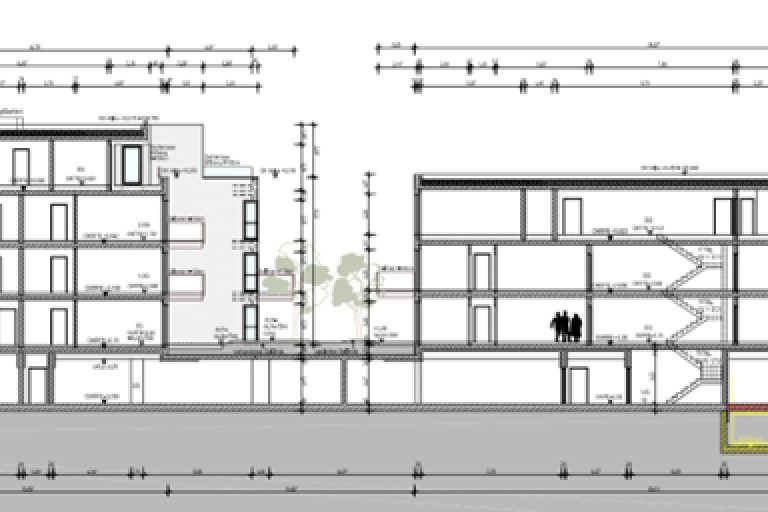
What we did: We created 3D BIM architectural models from PDF drawings

Output: ArchiCAD model, Render Lumion and Architectural Drawings

PDF drawings
PDF drawings _ Harnomny AT
3D BIM modeling services Harmony AT
Bim consulting harmony AT
3D BIM architectural models
Bim viet name Bim viet name Bim viet name
Contact us today for a free
consultation and quote